Základní informace
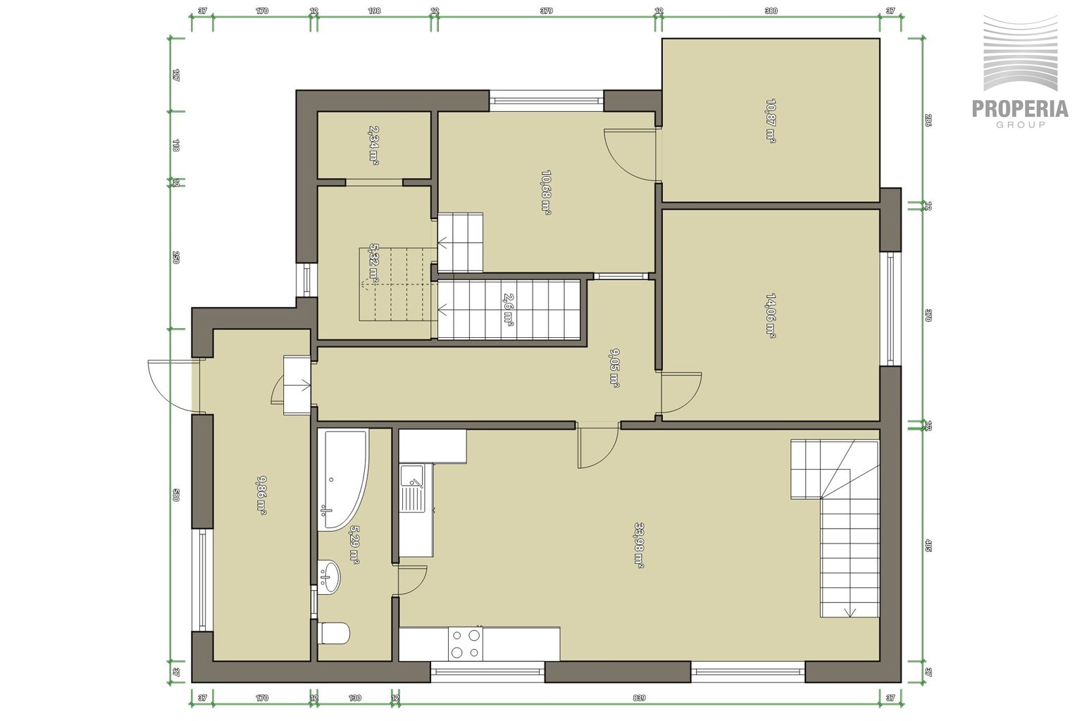
Nabízíme k prodeji dům na okraji obce Osová Bitýška. Jde o krásně zrekonstruovaný cihlový dům o dispozici 4+kk s možností rozšíření o další dva pokoje v půdním prostoru. Dům je celý podsklepen a prostorově nabízí různé možnosti využití.V 1/NP - vstup do prostorné chodby, ze které je vstoupíte do obývacího pokoje, propojeného s kuchyní, koupelnou a toaletou. V obývací části můžete zatopit krbovými kamny, které vyhřejí celý dům. Z obývacího pokoje vystoupáte po dřevěném schodišti do 2/NP - zde se nachází prostorná ložnice, dětský pokoj a samostatné WC. Z dětského pokoje je možné rozšíření v půdním prostoru (momentálně bez rekonstrukce) prostor další dva pokoje.
Před domem je možnost využití zahrady nebo parkovacího stání. Na pozemku před domem studna s užitkovou vodou.
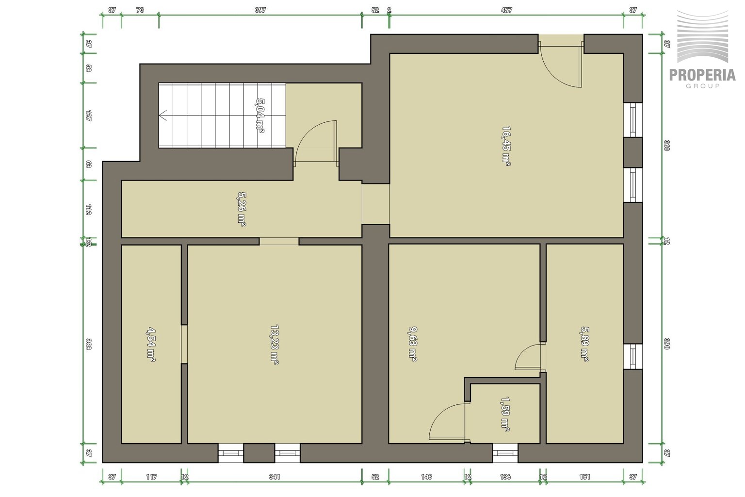
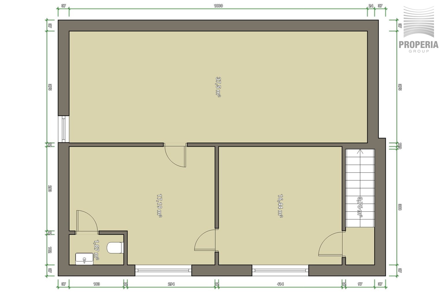
Dům má dvě nadzemní podlaží, jejich rozložení dobře znázorňují přiložené plánky. O ohřev vody se stará nový bojler značky Ariston. Topení je řešeno elektrokoltem nebo kamny na tuhá paliva. Celý dům je zateplen a okna jsou plastová. Elektřina je v mědi.
Při návštěvě domu Vás zaujmou trámové stropy, které jsou z části původní. K domu patří zahradní domek s posezením, dílny, krytý prostor pro vaše auto a i na domácí zvířátka je zde také myšleno.
Dům je volný dle domluvy a s financováním Vám rádi pomůžeme. Bonitou prodeje je možnost převzetí stávající hypotéky s nízkým úrokem!
Zahrada, které se za domem nachází je určena dle územního plánu k bydlení / rodinné smíšené/.Na zahradu je samostatný příjezd přes nově udělanou bránu.
Obec Osová Bitýška se nachází v okrese Ždár nad Sázavou. Od Brna 42 km, Velké Meziříčí 14 km. V obci je MŠ, ZŠ, Zdravotní středisko, lékárna, pošta, sportovní centrum, knihovna, obchody. Spojení možné IDS, vlakem či autobusem. Blízký nájezd na D1.
V případě zájmu o prohlídku kontaktujte makléře.
Těšíme se na Vás.
Umístění nemovitosti
PRODÁNO
Kategorie |
Rodinné domy |
Okres |
Žďár nad Sázavou |
Velikost |
4 pokoje |
Plocha užitná |
800 m2 |
Plocha pozemku |
2264 m2 |
Plocha zastavěná |
175 m2 |
Plocha zahrady |
1464 m2 |
Počet podlaží |
2 |
Stav objektu |
Po rekonstrukci |
Budova |
Cihlová |
Typ domu |
Patrový |
Poloha objektu |
Samostatný |
Umístění objektu |
Okraj obce |
En. náročnost b. |
G - Mimořádně nehospodárná |
Míst k parkování |
4 |
Parkování |
Ano |
Sklep |
Ano (50 m2) |
Zařízený |
Částečně |
Komunikace |
Asfaltová, Zpevněná |
Telekomunikace |
Internet |
Doprava |
Autobus, Dálnice, Silnice, Vlak |
Voda |
Dálkový vodovod, Studna |
Elektřina |
230V |
Odpad |
Veřejná kanalizace |
Topení |
Lokální tuhá paliva, Ústřední plynové |
Evidenční číslo |
02580 |